This exceptional single-family home is located on a beautifully tree-lined street in the Playter Estates neighborhood close to daycare and several public schools (including Jackman); to major auto routes and public transportation; and to shopping and restaurants.
Situated on an 18.5 x 96 ft. lot on the north side of Fulton Avenue, the home’s welcoming landscaped gardens offer your first hint of all that is unique about this property.
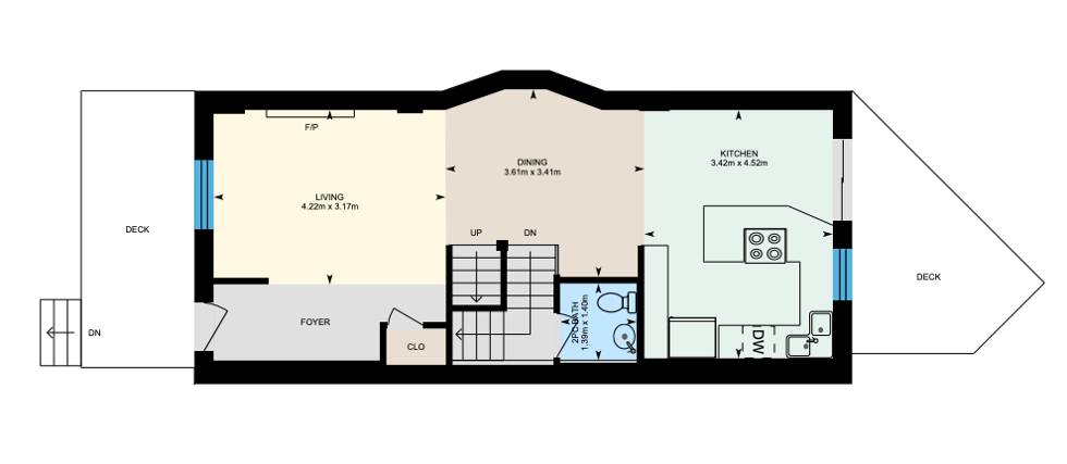
Already imagining relaxing on the front porch with a coffee or a cocktail, you enter a tiled foyer with closet that leads you to an open concept living, dining and multi-use space, all of which feature exceptional hardwood floors. At the heart of the spacious living room is a wood-burning fireplace and a large south-facing window. The dining area showcases both a bay window with Japanese shoji (paper-covered) panels and a built-in ledge with sliding shoji doors underneath. There is also a buffet area in the same style that sits below an alcove. A powder room is just a couple of steps down from the main floor.
The renovated Italian kitchen offers 4 appliances, a corner double sink, a glass tiled backsplash and under-cabinet lighting. Its large island with granite counters doubles as an area for casual dining or an entertainment centre where your guests can enjoy appetizers and a glass of wine while watching the chef at work. A large window provides ample natural light, while the back deck, reached through sliding doors, invites you to imagine dining outside as you enjoy the serenity of the tree-lined, back garden.
On the stairs to the 2nd floor, you pass the home’s original two-story exposed brick wall, as well as additional large walls for artwork. The master bedroom offers a second wood-burning fireplace, a bay window, a double closet and hardwood floors. The 2nd bedroom also offers hardwood floors, a number of windows and a clothes/ storage closet.
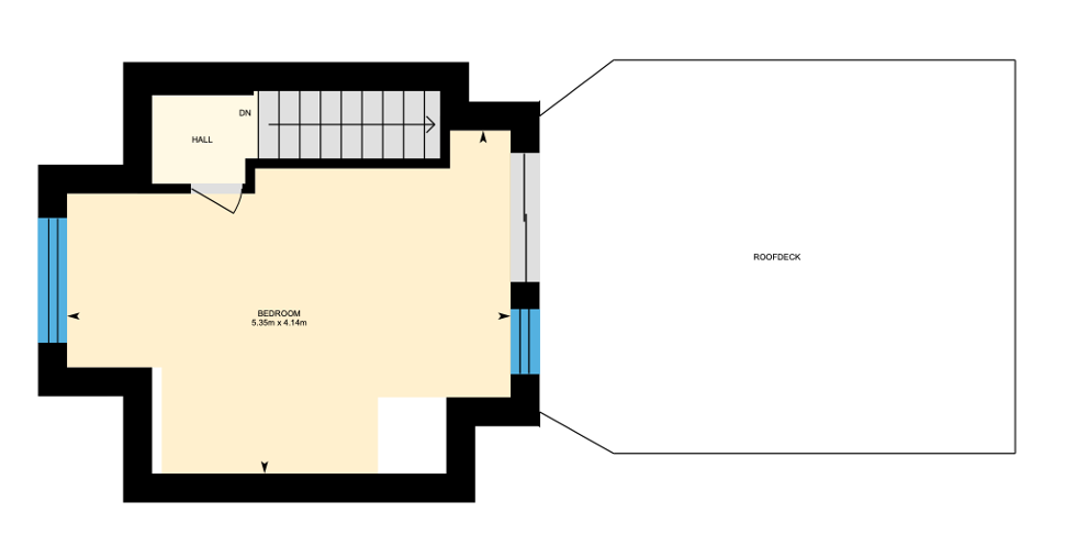
The 3rd floor gives you the option of another bedroom or a family room/office. Together with a window, sliding doors to a Japanese-inspired, landscaped roof terrace provide ample natural light. There is also a large, south-facing window. A wall air conditioning space pack ensures cool comfort for this floor.
The home also includes a finished lower level with a large play area for children, a laundry in the rear and two walls of large storage cabinets.
Taxes: $5355.35 2020
Inclusions: Jenn-Air stove, Miele Dishwasher, Amana Fridge, Panasonic Microwave, Washer & Dryer, Gas Burner and equipment, Freezer in basement. Large umbrella on thrid floor deck
Exclude: Dining Room Chandelier, Stairwell Chandelier, 3rd floor hanging light fixture.
Offered for sale at: $1,399,900


